Баня из бруса "Ипполит"

Описание

Баня «Ипполит» 4х4
Компания «Вирабуд» предлагает уютную и функциональную баню из бруса «Ипполит» с парной, душевой и открытой верандой. Она подарит вам возможность наслаждаться отдыхом в наполненной древесными ароматами парной. Для строительства используется клееный профилированный брус — прочный и долговечный материал. Такие парные являются идеальным местом для расслабления и оздоровления.

Сооружения имеют небольшой вес, поэтому могут устанавливаться на основание из бетонных блоков без обустройства сложного фундамента. На приусадебный участок постройка доставляется в виде домокомплекта и быстро собирается.

При желании клиента в типовой проект могут вноситься изменения, не влияющие на эксплуатационные характеристики постройки. Мы самостоятельно выполняем полный комплекс проектных, строительных и монтажных работ без привлечения сторонних подрядчиков.

Параметры дома:

S застройки: 14.40 м.кв.
S дома всего: 13.70 м.кв.
S помещений: 7.70 м.кв.
S террас, крылец, балконов, навесов: 6.00 м.кв.

Планировка

1 этаж
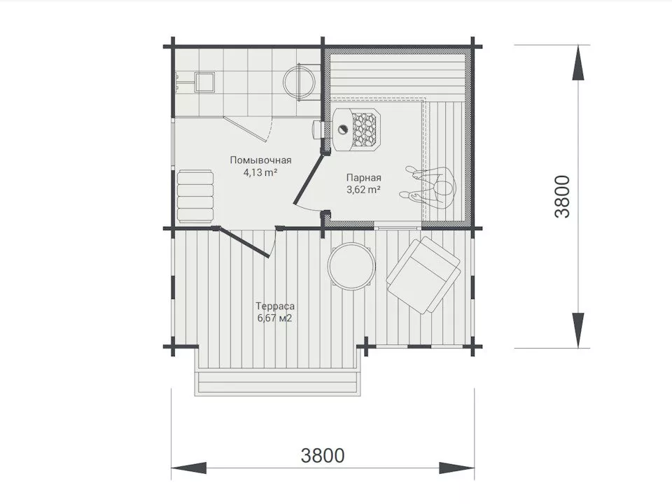
Планировка 1 этажа проекта Баня из бруса "Ипполит"
Планировка может быть изменена в соответствии с Вашими пожеланиями.

Что входит в стоимость

Стены
Подкладочный брус под стены, антисептированный
Наружные и внутренние стены из сухого профилированного бруса толщиной 44 мм
Стойки опорные из сухого строганного бруса
Крыша (стропильная)
Стропила, обрешетка, контробрешетка, ветрозащита
Кровельное покрытие из металлочерепицы
Подшивка потолка по крыше имитацией бруса
Крыша
Прогоны из бруса 44х140
Сплошной настил крыши из имитации бруса (чистый потолок)
Кровельное покрытие из гибкой черепицы «Технониколь» (серия «Оптима», либо «Docke» (серия «Eurasia»)
Полы
Деревянные лаги
Чистый дощатый настил из сухой шпунтованной доски внутри помещений
Плинтус деревянный
Полы террасы, крыльца из палубной доски
Перекрытие (если предусмотрено проектом)
Деревянные балки
Чистый дощатый пол мансарды (чердака)
Окна и двери
Входная дверь - деревянная филенчатая из массива сосны с фурнитурой и замком
Межкомнатные двери - деревянные филенчатые из массива сосны с фурнитурой и ручкой
Окна деревянные из массива сосны с одинарным остеклением, с ручками и запором
Наличники оконные и дверные – сухая строганная доска
Что не входит в стоимость
Инженерные коммуникации (отопление, сантехнические работы, электрика)
Окраска, мебель, печи, камины
Доставка комплекта (рассчитывается дополнительно)
Водосточная система (рассчитывается дополнительно)
Бетонные, кладочные работы
Отделка цоколя
Утепление бани
Что можем предложить дополнительно
Утепление наружных стен плитами минераловатными т.100 мм с устройством деревянного каркаса, ветрозащиты, контробрешетки и наружной обшивкой имитацией бруса
Утепление пола плитами минераловатными т.100 мм. Пароизоляция
Утепление крыши плитами минераловатными т.150 мм. Пароизоляция
Водосточная система крыши
Входная дверь утепленная металлическая либо ПВХ
Окна ПВХ поворотно-откидные, стеклопакет
Дополнительные предложение по отделке бани
Дровяная печь, укомплектованная печными камнями
Бак для воды «самоварного» типа
Утепленный дымоход из нержавеющей стали
Проходка через крышу
Зонтик из нержавеющей стали
Огнеупорные экраны в зоне печи
Банные лежаки
Отделка парной вагонкой лиственных пород, с устройством каркаса, пароотбойника и утепления

Подробные технические характеристики и варианты комплектации можно уточнить у менеджера.

Остались вопросы?

Похожие проекты