Баня из бруса "С лёгким паром"

Описание

Баня «С легким паром» 5х6
Возможно, это сама судьба привела вас к настоящему проекту бани, чтобы показать идеальный вариант храма здоровья и наслаждений. И мы не побоимся таких громких определений. Присмотритесь и вы не захотите покидать этот храм.

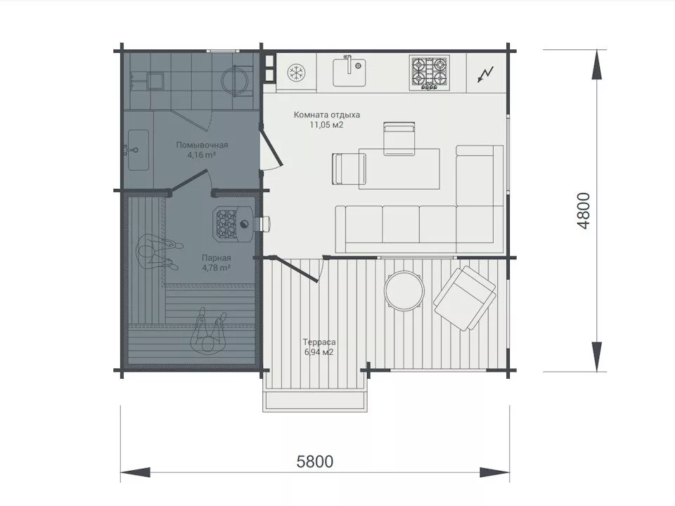
Главная особенность новый бани – это простор. Здесь все ориентировано на свободу ощущений, чтобы ни одна деталь не испортила впечатлений, не заставила пожалеть. Если в бане есть терраса – то она большая (5,6м²), чтобы разместиться, не сталкиваясь локтями. Если в строительстве бани подумали о комнате отдыха (10,9м²), то она вмещает всех гостей, сколько бы их не было. Если в планировке бани предусмотрели душевую (4,0м²), то для того, чтобы пользоваться ей было максимально удобно, никого не стесняя.

А парилка (5,2м²), сердце любой бани из бруса, располагается настолько удачно, что имеет печь с возможностью протопки из тамбура, сразу на входе. Одновременно обогревая и комнату отдыха. Оцените, как это удобно.

Не стоит играть с судьбой, выбирайте проверенные, продуманные решения. И пусть иронией судьбы станет не случайность, а ваша новая отличная деревянная баня.

Параметры дома:

S застройки: 27.80 м.кв.
S дома всего: 27.10 м.кв.
S помещений: 20.10 м.кв.
S террас, крылец, балконов, навесов: 7.00 м.кв.

Планировка

1 этаж
Планировка 1 этажа проекта Баня из бруса "С лёгким паром"
Планировка может быть изменена в соответствии с Вашими пожеланиями.

Что входит в стоимость

Стены
Подкладочный брус под стены, антисептированный
Наружные и внутренние стены из сухого профилированного бруса толщиной 44 мм
Стойки опорные из сухого строганного бруса
Крыша (стропильная)
Стропила, обрешетка, контробрешетка, ветрозащита
Кровельное покрытие из металлочерепицы
Подшивка потолка по крыше имитацией бруса
Крыша
Прогоны из бруса 44х140
Сплошной настил крыши из имитации бруса (чистый потолок)
Кровельное покрытие из гибкой черепицы «Технониколь» (серия «Оптима», либо «Docke» (серия «Eurasia»)
Полы
Деревянные лаги
Чистый дощатый настил из сухой шпунтованной доски внутри помещений
Плинтус деревянный
Полы террасы, крыльца из палубной доски
Перекрытие (если предусмотрено проектом)
Деревянные балки
Чистый дощатый пол мансарды (чердака)
Окна и двери
Входная дверь - деревянная филенчатая из массива сосны с фурнитурой и замком
Межкомнатные двери - деревянные филенчатые из массива сосны с фурнитурой и ручкой
Окна деревянные из массива сосны с одинарным остеклением, с ручками и запором
Наличники оконные и дверные – сухая строганная доска
Что не входит в стоимость
Инженерные коммуникации (отопление, сантехнические работы, электрика)
Окраска, мебель, печи, камины
Доставка комплекта (рассчитывается дополнительно)
Водосточная система (рассчитывается дополнительно)
Бетонные, кладочные работы
Отделка цоколя
Утепление бани
Что можем предложить дополнительно
Утепление наружных стен плитами минераловатными т.100 мм с устройством деревянного каркаса, ветрозащиты, контробрешетки и наружной обшивкой имитацией бруса
Утепление пола плитами минераловатными т.100 мм. Пароизоляция
Утепление крыши плитами минераловатными т.150 мм. Пароизоляция
Водосточная система крыши
Входная дверь утепленная металлическая либо ПВХ
Окна ПВХ поворотно-откидные, стеклопакет
Дополнительные предложение по отделке бани
Дровяная печь, укомплектованная печными камнями
Бак для воды «самоварного» типа
Утепленный дымоход из нержавеющей стали
Проходка через крышу
Зонтик из нержавеющей стали
Огнеупорные экраны в зоне печи
Банные лежаки
Отделка парной вагонкой лиственных пород, с устройством каркаса, пароотбойника и утепления

Подробные технические характеристики и варианты комплектации можно уточнить у менеджера.

Остались вопросы?

Похожие проекты