Array ( [0] => [1] => 12 [2] => ) SELECT * FROM shop_catalogs WHERE (`id`=12) AND `delhide`<2 ORDER BY ID

Беседка Турист-2

Woods.by
Беседка Турист-2
Беседка Турист-2
Беседка Турист-2
Беседка Турист-2
Беседка Турист-2

Характеристики дома

# Параметр Значение
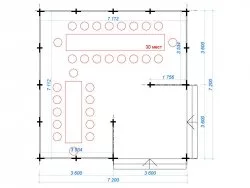
Площадь 51.84 м.кв.
Площадь застройки 7.2х7.2 м.кв.
Наличие террасы Нет
Площадь террасы м.кв.
Сборка 5640 р.
Оплата частями: от 940 р/мес

Стоимость дома в стандартной комплектации:
18800 BYN

Сборка: 5640 р.

Есть вопросы?
Позвоните нам по телефону:
+37529 657-
Позвонить и задать вопрос +37529 657-61-85
Связаться в viber Связаться в telegram Связаться в whatsapp

Каталоги проекта:

ООО ВираБуд
18800 BYN

Беседка Турист-2

Габаритный размер: 7.2 х 7.2 м
Площадь застройки: 51.84 м2

Цены приведены в долларах справочно и не являются публичной офертой.

Подвенечный оклад (обвязка)

Брус из древесины хвойных пород дерева естественной сушки сечением 100х150 мм

Стены

Профилированный строганный мини-брус камерной сушки сечением 44х135 мм, влажность 12-14%, монтируется по технологии четырехстороннего замкового паза с ветровым замком.
Высота стен не менее 18 венцов (~2,4 м).

Полы

Лаги– доска из древесины хвойных пород дерева естественной сушки сечением 50х150 мм, (шаг 600 мм), крепятся при помощи металлических опор бруса
Настил - палубная доска, влажность 12-14%.

Крыша

Стропила 50х150, прогоны.
Кровельный настил (потолок) - имитация бруса камерной сушки толщиной 20 мм, влажность 12-14%.
Кровельное покрытие - гибкая черепица SHINGLAS, серия Оптима (цвет красный, серый или коричневый), монтируется на кровельный настил.
Ветровая и торцевая планки - строганная доска камерной сушки из хвойных пород дерева мм, влажность 12-14%.

Фундамент

Винтовые сваи (25 шт.) монтируются за дополнительную оплату.

Окрашивание

Декоративно-защитное покрытие деревянных изделий не производится.

Доставка и монтаж

Доставка и монтаж на участке Покупателя производятся за дополнительную оплату.

Изменение размеров

Возможно по согласованию.
Расскажите друзьям:
Заказать звонок

Другие варианты

Беседка 3 х 7 «Летний вечер»

Беседка 3 х 7 «Летний вечер»

5400 руб.
Беседка Турист-3

Беседка Турист-3

36700 руб.
Беседка «Сергей Есенин»

Беседка «Сергей Есенин»

6110 руб.
Беседка из бруса «Дачная дюжина»

Беседка из бруса «Дачная дюжина»

3690 руб.