Array ( [0] => [1] => 5 [2] => 23 [3] => 21 [4] => ) SELECT * FROM shop_catalogs WHERE (`id`=5 or `id`=23 or `id`=21) AND `delhide`<2 ORDER BY ID

Дачный дом «Гармоничный»

Woods.by
Дачный дом «Гармоничный»
Дачный дом «Гармоничный»
Дачный дом «Гармоничный»
Дачный дом «Гармоничный»
Дачный дом «Гармоничный»
Дачный дом «Гармоничный»

Характеристики дома

# Параметр Значение
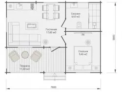
Площадь 45.2 м.кв.
Площадь застройки 7.80х5.80 м.кв.
Наличие террасы Да
Площадь террасы 11.00 м.кв.
Сборка 4720 р.
Оплата частями: от 1180 р/мес

Стоимость дома в стандартной комплектации:
23630 BYN

Сборка: 4720 р.

Есть вопросы?
Позвоните нам по телефону:
+37529 657-
Позвонить и задать вопрос +37529 657-61-85
Связаться в viber Связаться в telegram Связаться в whatsapp

Каталоги проекта:

ООО ВираБуд
23630 BYN

Дачный дом «Гармоничный»

Эта надежная и удобная постройка сделает ваш отдых на даче приятным в любую погоду. В знойный летний день она подарит желанную прохладу, а в ненастный — укроет от непогоды и согреет теплом. Проект, разработанный специалистами компании «ВираБуд», учитывает все аспекты комфорта и отлично подходит для семейного отдыха или в кругу друзей.

Планировка дома включает три помещения площадью 17,4, 6,5 и 9,3 кв. м, в которых можно обустроить гостиную, спальни, детскую комнату и другие функциональные зоны. Особенностью строения является просторная веранда для отдыха на свежем воздухе. Этот проект уже был реализован и отлично зарекомендовал себя в эксплуатации, но если возникнет необходимость внести в типовые чертежи какие-либо изменения, наши специалисты всегда пойдут навстречу вашим пожеланиям.

Преимущества заказа дачного дома из бруса 6 х 8 в компании «ВираБуд»

  1. Строительство по испытанным на практике проектам, квалифицированная адаптация типовых вариантов под потребности заказчика.
  2. Собственное производство качественных пиломатериалов по современным технологиям.
  3. Четкое соблюдение оговоренных сроков выполнения заказа.
  4. Комплексное сопровождение заказа — от проектирования до монтажа и ввода постройки в эксплуатацию.
  5. Возможность оптимизировать стоимость брусовой постройки за счет выбора разных пиломатериалов.

Получить дополнительную информацию, оптимизировать типовой эскиз под ваши требования, рассчитать стоимость индивидуального проекта дачного дома из бруса 6 х 8 и заключить договор вы можете в одном из наших офисов продаж.

Параметры дома:

  • S застройки: 45.20 м.кв.
  • S дома всего: 44.70 м.кв.
  • S помещений: 33.70 м.кв.
  • S террас, крылец, балконов, навесов: 11.00 м.кв.

Цены приведены в долларах справочно и не являются публичной офертой.

Подвенечный оклад (обвязка)

Брус из древесины хвойных пород дерева естественной сушки сечением 100х150 мм

Наружные стены (17 венцов - высота стены 2,295 м), фронтоны и перегородки

Профилированный строганный мини-брус камерной сушки сечением 44х135 мм, влажность 12-14%, монтируется по технологии четырехстороннего замкового паза с ветровым замком (теплый не продуваемый угол).

Балки перекрытия (лаги)

Доска из древесины хвойных пород дерева естественной сушки сечением 50х150 мм, (шаг 600 мм), крепятся при помощи металлических опор бруса.

Полы

Доска пола 27х135, влажность 12-14%.

Стропильная система/прогоны

Строганный мини-брус камерной сушки сечением 45х140 мм, влажность 12-14%

Кровельный настил

Имитация бруса камерной сушки толщиной 20 мм, влажность 12-14%

Кровля

Гибкая черепица SHINGLAS, серия Оптима (цвет красный, серый или коричневый), монтируется на кровельный настил

Ветровая и торцевая планки

Строганная доска камерной сушки из хвойных пород дерева мм, влажность 12-14%

Входная дверь

Деревянный филенчатый дверной блок из массива сосны 2080х880 мм со всей необходимой фурнитурой, петли, врезной замок

Межкомнатные двери (если предусмотрены проектом)

Деревянный филенчатый дверной блок из массива сосны 2080х880 мм со всей необходимой фурнитурой; петли, ручка, фиксатор

Окна

Деревянный оконный блок из массива сосны с одинарным остеклением h - 1000 мм (укомплектован ручками и запором).

Наличники

Строганная доска камерной сушки из хвойных пород дерева мм, влажность 12-14%
Расскажите друзьям:
Заказать звонок

Другие варианты

Проект дома «Тройной Удел»

Проект дома «Тройной Удел»

21600 руб.
Дачный дом «Место для встречи»

Дачный дом «Место для встречи»

14270 руб.
Садовый дом «Василек»

Садовый дом «Василек»

24320 руб.
Дачный дом «Рябина»

Дачный дом «Рябина»

23280 руб.