Array ( [0] => [1] => 10 [2] => ) SELECT * FROM shop_catalogs WHERE (`id`=10) AND `delhide`<2 ORDER BY ID

Гараж для садовой техники «Любимец»

Woods.by
Гараж для садовой техники «Любимец»
Гараж для садовой техники «Любимец»
Гараж для садовой техники «Любимец»
Гараж для садовой техники «Любимец»
Гараж для садовой техники «Любимец»

Характеристики дома

# Параметр Значение
Площадь 16 м.кв.
Площадь застройки 5,5х3,0 м м.кв.
Наличие террасы
Площадь террасы м.кв.
Сборка 2020 р.
Оплата частями: от 510 р/мес

Стоимость дома в стандартной комплектации:
10080 BYN

Сборка: 2020 р.

Есть вопросы?
Позвоните нам по телефону:
+37529 657-
Позвонить и задать вопрос +37529 657-61-85
Связаться в viber Связаться в telegram Связаться в whatsapp

Каталоги проекта:

ООО ВираБуд
10080 BYN

Гараж для садовой техники «Любимец»

Настоящий проект дачного гаража несколько выделяется в линейке деревянных гаражей ВираБуд, поскольку предназначен не для автомобиля, но не менее важен, ведь он призван сберечь и упорядочить хранение всевозможной дачной техники. В том числе и моторизованной.

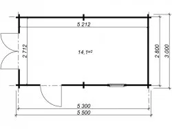
Имея классические размеры 5,5х3 метра (полезная площадь 14,1м²), каркасный гараж в торце оборудован двойными распашными дверями, рассчитанными на проезд квадроцикла или даже снегохода. Соответственно, не представляет никакой сложности перемещение внутрь гаража более мелкой техники: мотокультиваторов, снегоуборщиков, газонокосилок и т.п. Оборудовав гараж для дачи наклонным пандусом, можно еще больше упростить эту задачу.

В боковой стене гаража для техники предусмотрены одностворчатая дверь и световое застекленное окно. Высокие сводчатые потолки гаража своими руками позволяют устанавливать вместительные стеллажи, где найдется место всем дачным мелочам.

Когда на вашем участке за порядком следит лучший гараж Любимец, то и вся техника становится любимой. И исправно служит многие годы.

Цены приведены в долларах справочно и не являются публичной офертой.

Подвенечный оклад (обвязка)

Брус из древесины хвойных пород дерева естественной сушки сечением 100х150 мм

Наружные стены (17 венцов - высота стены 2,295 м), фронтоны

Профилированный строганный мини-брус камерной сушки сечением 44х135 мм, влажность 12-14%, монтируется по технологии четырехстороннего замкового паза с ветровым замком (теплый не продуваемый угол).

Балки перекрытия (лаги пола)

Доска из древесины хвойных пород дерева естественной сушки сечением 50х150 мм, (шаг 600 мм), крепятся при помощи металлических опор бруса.

Полы

Доска пола 27х135, влажность 12-14%.

Стропильная система/прогоны

Строганный мини-брус камерной сушки сечением 45х140 мм, влажность 12-14%

Кровельный настил

Имитация бруса камерной сушки толщиной 20 мм, влажность 12-14%

Кровля

Гибкая черепица SHINGLAS, серия Оптима (цвет красный, серый или коричневый), монтируется на кровельный настил

Ветровая и торцевая планки

Строганная доска из хвойных пород дерева

Двери

Деревянные филенчатые дверные блоки, с петлями, ручками и замками

Окно

Деревянный оконный блок из массива сосны с одинарным остеклением высотой 1 м (укомплектован ручками и запором).

Наличники

Строганная доска камерной сушки из хвойных пород дерева, влажность 12-14%

Гаражные ворота

В стоимость не входят. Нашей компанией не поставляются и не монтируются

Фундаментные опоры

Не входят в стоимость
Расскажите друзьям:
Заказать звонок

Другие варианты

Навес на две машины «8 колёс»

Навес на две машины «8 колёс»

11970 руб.
Навес для автомобиля с мастерской «АвтоХаус 2»

Навес для автомобиля с мастерской «АвтоХаус 2»

10140 руб.
Навес для машины «Ласточкино гнездо»

Навес для машины «Ласточкино гнездо»

7840 руб.
Навес «Ласточкино гнездо 2.0»

Навес «Ласточкино гнездо 2.0»

8730 руб.