Array ( [0] => [1] => 20 [2] => 22 [3] => 24 [4] => 23 [5] => 2 [6] => ) SELECT * FROM shop_catalogs WHERE (`id`=20 or `id`=22 or `id`=24 or `id`=23 or `id`=2) AND `delhide`<2 ORDER BY ID

Дом из бруса «Успех»

Woods.by
Дом из бруса «Успех»
Дом из бруса «Успех»
Дом из бруса «Успех»
Дом из бруса «Успех»
Дом из бруса «Успех»
Дом из бруса «Успех»

Характеристики дома

# Параметр Значение
Площадь 109 м.кв.
Площадь застройки 7х7 м.кв.
Наличие террасы Да
Площадь террасы 28.10 м.кв.
Сборка Включена в стоимость
Оплата частями: от 7100 р/мес

Стоимость дома в стандартной комплектации:
141870 BYN

Сборка: Включена в стоимость

Есть вопросы?
Позвоните нам по телефону:
+37529 657-
Позвонить и задать вопрос +37529 657-61-85
Связаться в viber Связаться в telegram Связаться в whatsapp

Каталоги проекта:

ООО ВираБуд
141870 BYN

Дом из бруса «Успех»

Параметры дома:

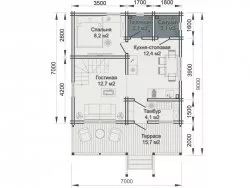
  • S застройки: 63.0 м.кв.
  • S дома всего: 109.0 м.кв.
  • S помещений: 80.90 м.кв.
  • S террас, крылец, балконов, навесов: 28.10 м.кв.

Этот идеальный загородный дом был обязан появиться уже давно. Площадь дома 109 м.кв., габаритные размеры 9 на 7 метров.

Точнее, он давно и появился, как модификация проекта дачного дома «Раздолье», но с истинно «раздольными» открытыми верандой и балконом, с увеличенными оконными проемами и внутренними пространствами. «Какой милый…» - такие комментарии под фотографиями этого дома были самыми частыми. Что ж, пусть таким и будет - «Успех». Давайте заглянем в него.

Внешне дом вызывает восторженные эмоции, как игрушка любимого ребенка, ладно скроен и пропорционально выверен, заведомо приятен. Классика русского зодчества: два этажа с небольшим «пятном застройки», идеален для небольших участков и полноценен для больших семей.

Внутри – такая же идеальная картина, все просто и удобно. С чудесной просторной веранды (13,8м²) зайдем в небольшой тамбур (3,9м²), переоденемся перед выходом в общий холл (12,1м²), который сложно-совмещен с гостиной (12,6м²), оригинальное решение. К холлу-кухне примыкают компактные санузел и котельная (по 2м²), всё необходимое должно быть под рукой.

Здесь же, на первом этаже, проектом предусмотрена спальня (8,1м²) – гостевая или для тех, кому противопоказанны подъемы по лестницам на второй этаж. А мы давайте поднимемся туда.

Наверху – классическая личная зона владельцев: три номинальные спальни (от 8 до 12,3м²), готовые принять любое назначение. Решите самостоятельно, где разместятся взрослые, где - дети, а где будет кабинет. Нет санузла? Не беда. Мы спроектируем его по вашему желанию, а также дополнительно «поиграем» при необходимости с планировками совершенно бесплатно.

Все три комнаты второго этажа объединяет просторный холл (10,4м²) с выходом на огромный балкон (13,1м²), где идеально разместится чайная мебель, возможно плетеная, и прочие милые сердцу штучки, создавая самый милый уголок в вашем новом «Успехе», таком теплом и родном.

Вы давно это искали.

Цены приведены в долларах справочно и не являются публичной офертой.

Наружные стены

Конструкция стены по технологии "двойной" брус с заполнением пространства высокоэффективным теплоизоляционным материалом "Эковата" толщиной 150 мм. Брус камерной сушки из хвойных пород дерева влажностью 10-12% монтируется по технологии четырехстороннего замкового паза с ветровым замком (теплый не продуваемый угол)

Перегородки

Конструкция стены по технологии "двойной" брус с заполнением пространства высокоэффективным теплоизоляционным материалом "Эковата" толщиной 100 мм. Брус камерной сушки из хвойных пород дерева влажностью 10-12% монтируется по технологии четырехстороннего замкового паза с ветровым замком (теплый не продуваемый угол).

Высота 1 этажа от чистого пола

Не менее 2500 мм

Отделка внутренних и наружных стен

Не требуется. Поверхность подготовлена для нанесения защитных средств.

Терраса

Столбы 150х150 мм из клееного бруса

Стропильные ноги

Брус из древесины хвойных пород естественной сушки сечение 50х200 мм. Сечение определяется проектом

Конструкция кровли

Утепленная кровля с вентиляционным зазором, капельником конденсата и москитной сеткой. Контробрешетка из бруска, шаговая обрешетка.

Кровельное покрытие

Металлочерепица Грандлайн классик 0,45 PE, планки коньковые, карнизные/капельник, торцевые, примыкания, ендовы.

Утепление пола 1-го этажа

Утепление пола 150 мм; доска пола, пароизоляционная мембрана; минвата ROCKWOOL в плитах; мембрана супердиффузионная гидро-ветрозащитная, основание под теплоизоляцию из доски. Возможна замена утеплителя на «Эковату экстра» и основания на ОСП-3 толщиной 9 мм

Утепление крыши

Утепление 200 мм; кровля; шаговая обрешетка; контробрешетка; гидро-ветрозащитная мембрана; минвата ROCKWOOL в плитах, пароизоляционная мембрана; имитация бруса.

Подшивка карнизов/софиты

Имитация бруса толщиной 20 мм камерной сушки из хвойных пород дерева.

Покрытие полов

Шпунтованная доска камерной сушки из хвойных пород дерева или ОСП-3 толщиной 22 мм по лагам, монтаж открытым способом. Возможна замена доски пола на лист ЦСП толщиной 20 мм.

Полы террасы и балкона

Террасная доска камерной сушки из хвойных пород дерева толщиной 27 мм по лагам, монтаж открытым способом

Полы санузла/котельной (если предусмотрено проектом)

Шпунтованная доска камерной сушки из хвойных пород дерева толщиной 35 мм или ОСП-3 толщиной 22 мм по лагам, монтаж открытым способом. Возможна замена доски пола на лист ЦСП толщиной 20 мм.

Отделка потолка 1-го этажа во всех помещениях

По межэтажным перекрытиям и по стропильным ногам имитацией бруса камерной сушки из хвойных пород дерева, толщиной 20 мм, монтаж финишными гвоздями открытым способом.

Потолок террасы

По стропильным ногам имитацией бруса камерной сушки из хвойных пород дерева, толщиной 20 мм, монтаж финишными гвоздями открытым способом.

Межкомнатные двери

Евродверь (h)2080х880 мм (филенчатая срощенная бессучковая) со всей необходимой фурнитурой: универсальные петли, фиксатор, ручка-кнопка.

Входная дверь

Дверь ПВХ или стальная 860х2050мм утепленная, либо ПВХ.

Окна

ПВХ-окна Rehau цвет белый с двухкамерным стеклопакетом, фурнитурой ROTO NT, глухой и поворотнооткидной створкой, отливом 70 мм цвет белый, высота и ширина изделия определяется проектом.

Окосячка окон

Профиль из доски камерной сушки хвойных пород дерева

Наличники на окна

Профиль из доски камерной сушки хвойных пород дерева

Отделка откосов оконных проемов

Откосы оконных проемов с четырех сторон отделываются доской камерной сушки на всю ширину откоса. Торцы откосов отделываются по периметру с четырех сторон - наличником из доски камерной сушки.
Расскажите друзьям:
Заказать звонок

Другие варианты

Дом из бруса «Звезда»

Дом из бруса «Звезда»

85330 руб.
Одноэтажный дом «Мечта»

Одноэтажный дом «Мечта»

119540 руб.
Дом из бруса «Уют»

Дом из бруса «Уют»

65770 руб.