Array ( [0] => [1] => 7 [2] => 21 [3] => 23 [4] => 5 [5] => ) SELECT * FROM shop_catalogs WHERE (`id`=7 or `id`=21 or `id`=23 or `id`=5) AND `delhide`<2 ORDER BY ID

Садовый домик «Эталонный»

Woods.by
Садовый домик «Эталонный»
Садовый домик «Эталонный»
Садовый домик «Эталонный»
Садовый домик «Эталонный»
Садовый домик «Эталонный»

Характеристики дома

# Параметр Значение
Площадь 18.36 м.кв.
Площадь застройки 5.1х3.6 м.кв.
Наличие террасы Да
Площадь террасы 5.10 м.кв.
Сборка 2280 р.
Оплата частями: от 570 р/мес

Стоимость дома в стандартной комплектации:
11420 BYN

Сборка: 2280 р.

Есть вопросы?
Позвоните нам по телефону:
+37529 176-
Позвонить и задать вопрос +37529 176-2-888
Связаться в viber Связаться в telegram Связаться в whatsapp

Каталоги проекта:

ООО ВираБуд
11420 BYN

Садовый домик «Эталонный»

Компактный экологичный и недорогой дачный домик «Эталонный» является разумным выбором для ценителей загородной жизни. Выбор в ее пользу позволит сэкономить. Внутри предусмотрено все необходимое для неспешной жизни на свежем воздухе.

Проект отличается многофункциональностью. Дом можно использовать в качестве основного жилья, а также как гостевой вариант или в качестве летней кухни. В ней 20 м2 площади, что обеспечивает комфортные условия независимо от выбранного способа использования.

Благодаря внушительным оконным и дверным проемам внутри всегда много солнечного света, воздуха и ощущения свободы. Для изготовления стен применяется профилированный брус, что позволяет не тратится дополнительно на их декоративную отделку. Проводить максимум времени на свежем воздухе поможет веранда с крышей, защищающая от палящего солнца и дождя.

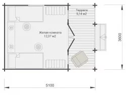
Параметры дома:

  • S застройки: 18.40 м.кв.
  • S дома всего: 17.50 м.кв.
  • S помещений: 12.40 м.кв.
  • S террас, крылец, балконов, навесов: 5.10 м.кв.

Цены приведены в долларах справочно и не являются публичной офертой.

Подвенечный оклад (обвязка)

Брус из древесины хвойных пород дерева естественной сушки сечением 100х150 мм

Наружные стены (17 венцов - высота стены 2,295 м), фронтоны и перегородки

Профилированный строганный мини-брус камерной сушки сечением 44х135 мм, влажность 12-14%, монтируется по технологии четырехстороннего замкового паза с ветровым замком (теплый не продуваемый угол).

Балки перекрытия (лаги)

Доска из древесины хвойных пород дерева естественной сушки сечением 50х150 мм, (шаг 600 мм), крепятся при помощи металлических опор бруса.

Полы

Доска пола 27х135, влажность 12-14%.

Стропильная система/прогоны

Строганный мини-брус камерной сушки сечением 45х140 мм, влажность 12-14%

Кровельный настил

Имитация бруса камерной сушки толщиной 20 мм, влажность 12-14%

Кровля

Гибкая черепица SHINGLAS, серия Оптима (цвет красный, серый или коричневый), монтируется на кровельный настил

Ветровая и торцевая планки

Строганная доска камерной сушки из хвойных пород дерева мм, влажность 12-14%

Входная дверь

Деревянный филенчатый дверной блок из массива сосны 2080х880 мм со всей необходимой фурнитурой, петли, врезной замок

Окна

Деревянные оконные блоки из массива сосны с одинарным остеклением (укомплектованы ручками и запорами), высота по проекту

Наличники

Строганная доска камерной сушки из хвойных пород дерева мм, влажность 12-14%
Расскажите друзьям:
Заказать звонок

Другие варианты

Садовый дом «Ассоль»

Садовый дом «Ассоль»

14580 руб.
Садовый дом «Уютный угол»

Садовый дом «Уютный угол»

14960 руб.
Проект дома «Тройной Удел»

Проект дома «Тройной Удел»

21600 руб.
Садовый дом «Ласточка»

Садовый дом «Ласточка»

30240 руб.