Array ( [0] => [1] => 21 [2] => 23 [3] => 5 [4] => ) SELECT * FROM shop_catalogs WHERE (`id`=21 or `id`=23 or `id`=5) AND `delhide`<2 ORDER BY ID

Садовый дом «Бальзамин»

Woods.by
Садовый дом «Бальзамин»
Садовый дом «Бальзамин»
Садовый дом «Бальзамин»
Садовый дом «Бальзамин»
Садовый дом «Бальзамин»
Садовый дом «Бальзамин»

Характеристики дома

# Параметр Значение
Площадь 27.7 м.кв.
Площадь застройки 7.1x4.4 м.кв.
Наличие террасы Да
Площадь террасы 5.1 м.кв.
Сборка 3340 р.
Оплата частями: от 840 р/мес

Стоимость дома в стандартной комплектации:
16660 BYN

Сборка: 3340 р.

Есть вопросы?
Позвоните нам по телефону:
+37529 176-
Позвонить и задать вопрос +37529 176-2-888
Связаться в viber Связаться в telegram Связаться в whatsapp

Каталоги проекта:

ООО ВираБуд
16660 BYN

Садовый дом «Бальзамин»

Бальзамин в переводе с латинского означает «нетерпеливый». 

Так и этот небольшой садовый домик, подобно популярному цветку, мгновенно возникнет на вашем участке в случае, если терпеть имеющиеся неудобства уже невозможно.

Прелесть этого проекта дачного дома заключается в его универсальности. На первом этапе строительства он может стать полноценным жильем, а в последующем прекрасно трансформироваться в отличную баню или садовую постройку любого другого предназначения.

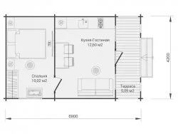
На фото садового дома можно увидеть небольшую веранду 5 кв.м. и две больших комнаты 13 и 10 м². Конструкторы ВираБуд предусмотрели вольное расположение окон данного дачного домика в зависимости от пожеланий заказчика.

В дальнейшем, окружив дом растениями семейства бальзаминовых, можно создать уникальный цветочный оазис в едином стиле.

Параметры дома:

  • S застройки: 29.0 м.кв.
  • S дома всего: 27.7 м.кв.
  • S помещений: 22.6 м.кв.
  • S террас, крылец, балконов, навесов: 5.1 м.кв.

Цены приведены в долларах справочно и не являются публичной офертой.

Подвенечный оклад (обвязка)

Брус из древесины хвойных пород дерева естественной сушки сечением 100х150 мм

Наружные стены (17 венцов - высота стены 2,295 м), фронтоны и перегородки

Профилированный строганный мини-брус камерной сушки сечением 44х135 мм, влажность 12-14%, монтируется по технологии четырехстороннего замкового паза с ветровым замком (теплый не продуваемый угол).

Балки перекрытия (лаги)

Доска из древесины хвойных пород дерева естественной сушки сечением 50х150 мм, (шаг 600 мм), крепятся при помощи металлических опор бруса.

Полы

Доска пола 27х135, влажность 12-14%.

Стропильная система/прогоны

Строганный мини-брус камерной сушки сечением 45х140 мм, влажность 12-14%

Кровельный настил

Имитация бруса камерной сушки толщиной 20 мм, влажность 12-14%

Кровля

Гибкая черепица SHINGLAS, серия Оптима (цвет красный, серый или коричневый), монтируется на кровельный настил

Ветровая и торцевая планки

Строганная доска камерной сушки из хвойных пород дерева мм, влажность 12-14%

Входная дверь

Деревянный филенчатый дверной блок из массива сосны 2080х880 мм со всей необходимой фурнитурой, петли, врезной замок

Межкомнатные двери (если предусмотрены проектом)

Деревянный филенчатый дверной блок из массива сосны 2080х880 мм со всей необходимой фурнитурой; петли, ручка, фиксатор

Окна

Деревянный оконный блок из массива сосны с одинарным остеклением h - 1000 мм (укомплектован ручками и запором).

Наличники

Строганная доска камерной сушки из хвойных пород дерева мм, влажность 12-14%
Расскажите друзьям:
Заказать звонок

Другие варианты

Феникс

Феникс

118090 руб.
Дачный дом «Шелковый путь»

Дачный дом «Шелковый путь»

17040 руб.
Дачный дом «Место для встречи»

Дачный дом «Место для встречи»

14270 руб.
Дом из бруса «Хозяйский»

Дом из бруса «Хозяйский»

39990 руб.