Дом из бруса «Успех»

Описание

Внешне дом вызывает восторженные эмоции, как игрушка любимого ребенка, ладно скроен и пропорционально выверен, заведомо приятен. Классика русского зодчества: два этажа с небольшим «пятном застройки», идеален для небольших участков и полноценен для больших семей.

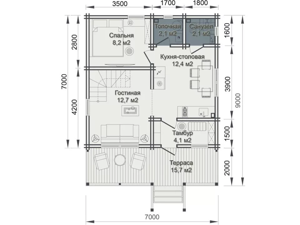
Внутри – такая же идеальная картина, все просто и удобно. С чудесной просторной веранды (13,8м²) зайдем в небольшой тамбур (3,9м²), переоденемся перед выходом в общий холл (12,1м²), который сложно-совмещен с гостиной (12,6м²), оригинальное решение. К холлу-кухне примыкают компактные санузел и котельная (по 2м²), всё необходимое должно быть под рукой.

Здесь же, на первом этаже, проектом предусмотрена спальня (8,1м²) – гостевая или для тех, кому противопоказанны подъемы по лестницам на второй этаж. А мы давайте поднимемся туда.

Наверху – классическая личная зона владельцев: три номинальные спальни (от 8 до 12,3м²), готовые принять любое назначение. Решите самостоятельно, где разместятся взрослые, где - дети, а где будет кабинет. Нет санузла? Не беда. Мы спроектируем его по вашему желанию, а также дополнительно «поиграем» при необходимости с планировками совершенно бесплатно.

Все три комнаты второго этажа объединяет просторный холл (10,4м²) с выходом на огромный балкон (13,1м²), где идеально разместится чайная мебель, возможно плетеная, и прочие милые сердцу штучки, создавая самый милый уголок в вашем новом «Успехе», таком теплом и родном.

Планировка

1 этаж
Планировка 1 этажа проекта Дом из бруса «Успех»
2 этаж
Планировка 2 этажа проекта Дом из бруса «Успех»
Планировка может быть изменена в соответствии с Вашими пожеланиями.

Что входит в стоимость

Наружные стены
Двойной брус с утеплением эковатой 150 мм, брус камерной сушки 10–12%, тёплый непродуваемый угол.
Внутренние перегородки
Двойной брус с утеплением эковатой 100 мм, брус камерной сушки.
Высота этажа
Высота 1-го этажа от чистого пола — не менее 2500 мм.
Отделка стен
Внутренняя и наружная отделка не требуется, поверхность подготовлена под защитные покрытия.
Кровля
Утеплённая кровля с вентиляционным зазором, контробрешёткой и шаговой обрешёткой.
Кровельное покрытие
Металлочерепица Grand Line Classic 0,45 мм с полным комплектом доборных элементов.
Утепление пола и крыши
Пол — утепление 150 мм; крыша — утепление 200 мм, возможна замена утеплителя на эковату.
Перекрытия и стропильная система
Брус хвойных пород естественной сушки, сечение определяется проектом.
Полы
Шпунтованная доска или ОСП-3 по лагам; для санузлов возможна замена на ЦСП.
Терраса и балкон
Террасная доска камерной сушки по лагам, опоры из клеёного бруса 150×150 мм.
Окна и двери
ПВХ-окна Rehau с двухкамерным стеклопакетом; входная дверь ПВХ или стальная, межкомнатные — евродвери.
Окосячка и откосы
Окосячка и наличники из доски камерной сушки, откосы полностью отделаны деревом.

Подробные технические характеристики и варианты комплектации можно уточнить у менеджера.

Остались вопросы?

Похожие проекты