Дом из бруса "Ревьера-2"

Описание

Дом из бруса «Ревьера-2»
Ревьера-2 — тёплый, уютный дом из двойного бруса для постоянного проживания. Лаконичная архитектура, широкие свесы кровли и просторная терраса придают ему характер современного северного дома, где комфорт соединён с природной гармонией.

Планировка продумана для жизни семьи:
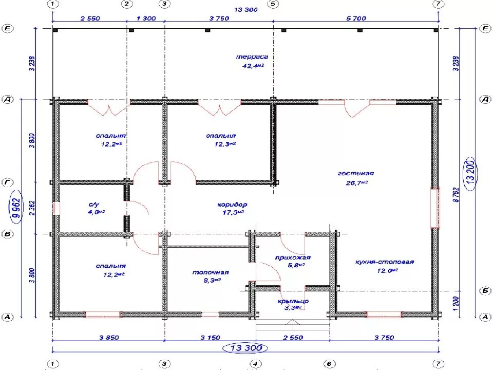
• три спальни по 12 м² — светлые и уединённые,
• просторная гостиная 26 м² — центр общения и отдыха,
• кухня-столовая 12 м² — удобное пространство для семейных обедов,
• санузел и топочная — всё необходимое для круглогодичного проживания,
• терраса 42 м² — идеальное место для отдыха, завтраков на свежем воздухе и летних вечеров.

Конструкция из двойного профилированного бруса обеспечивает отличную теплоизоляцию и создаёт естественный микроклимат.
Ревьера-2 — дом, в котором уют и практичность сочетаются с современным дизайном и надёжностью деревянного строительства.

Планировка

1 этаж
Планировка 1 этажа проекта Дом из бруса "Ревьера-2"
Планировка может быть изменена в соответствии с Вашими пожеланиями.

Что входит в стоимость

Стены
Подкладочный брус под стены.
Наружные и внутренние стены 44мм, перегородки.
Крыша
Стропильная система, обрешетка, контробрешетка.
Утепление, пароизоляция, ветрозащита.
Кровельное покрытие из металлочерепицы.
Подшивка потолка имитацией бруса.
Окна и двери
ПВХ окна с двухкамерными стеклопакетами, входная утепленная дверь.
Межкомнатные двери.
Полы
Деревянные лаги, черновой настил под утепление, чистый дощатый настил
Подшивка потолка имитацией бруса
Полы террасы, крыльца из палубной доски
Перекрытие
Деревянные балки, черновой настил под утепление, чистый дощатый пол мансарды (чердака), подшивка потолка имитацией бруса.
Утепление
Утепление наружных стен и пола эковатой толщиной 150 мм.
Утепление внутренних стен эковатой 100 мм.
Утепление крыши эковатой 200 мм.
Звукоизоляция перекрытия эковатой 150 мм.
Сборка
Сборка домокомплекта включена в стоимость.
Что не входит в стоимость
Инженерные коммуникации (отопление, сантехнические работы, электрика).
Окраска, мебель, печи, камины.
Доставка комплекта (рассчитывается дополнительно)
Водосточная система (рассчитывается дополнительно)
Бетонные, кладочные работы.
Отделка цоколя.

Подробные технические характеристики и варианты комплектации можно уточнить у менеджера.

Остались вопросы?

Похожие проекты