Беседка «Полянка» 2.0

Описание

Габаритный размер: 3.8 х 5.8 м
Площадь застройки: 22.04 м2
Как же приятно, после долгой прогулки по лесу, оказаться на уютной полянке, залитой солнцем, но при этом уютно укрытой кронами деревьев. В этом царстве свежего воздуха накрыть стол, разместить за ним всех гостей и большую семью, и не переживать, что праздник испортит непогода…

Все указанные типоразмеры – не окончательны, и могут быть скорректированы под ваши требования. Главная и обобщающая особенность всех «Полянок» - это наличие большой открытой террасы и закрытого помещения разных площадей.

Планировка

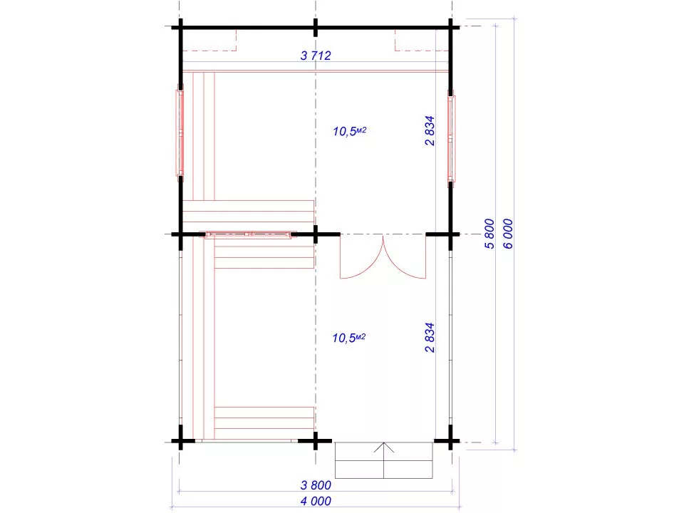
1 этаж
Планировка 1 этажа проекта Беседка «Полянка» 2.0
Планировка может быть изменена в соответствии с Вашими пожеланиями.

Что входит в стоимость

Стены и обвязка
Профилированный строганный мини-брус камерной сушки сечением 44х135 мм, влажность 12-14%, монтируется по технологии четырехстороннего замкового паза с ветровым замком
Высота стен не менее 17 венцов (~2,3 м), высота фронтонов ~0,65
Обвязка - брус из древесины хвойных пород дерева естественной сушки сечением 100х150 мм.
Полы
Лаги– доска из древесины хвойных пород дерева естественной сушки сечением 50х150 мм, (шаг 600 мм) крепятся при помощи металлических опор бруса
Настил - палубная либо шпунтованная доска, влажность 12-14%.
Крыша
Прогоны - строганный мини-брус камерной сушки сечением 45х140 мм, влажность 12-14%
Кровельный настил (потолок) - имитация бруса камерной сушки толщиной 20 мм, влажность 12-14%
Кровельное покрытие - гибкая черепица SHINGLAS, серия Оптима (цвет красный, серый или коричневый), монтируется на кровельный настил
Ветровая и торцевая планки - строганная доска камерной сушки из хвойных пород дерева мм, влажность 12-14%.
Элементы мебели
Деревянные скамейки согласно эскиза.
Изменение планировки или размеров
Возможно.
Что не входит в стоимость
Фундамент (свайно-винтовой фундамент). Монтаж возможен за дополнительную плату
Окрашивание - окрашивание возможно за дополнительную плату
Доставка - доставка рассчитывается в зависимости от местонахождения объекта.

Подробные технические характеристики и варианты комплектации можно уточнить у менеджера.

Остались вопросы?

Похожие проекты