Описание
Дачный дом «Место для встречи»
Мимо вы точно не пройдете!
Садовый домик сконструирован таким образом, что любой человек, даже случайно появившийся поблизости, непременно окажется за приветливым столом под уютным навесом веранды. Пожалуй, это самый дружелюбный и компанейский проект компании Вирабуд, средство объединения и притяжения для любой семьи.
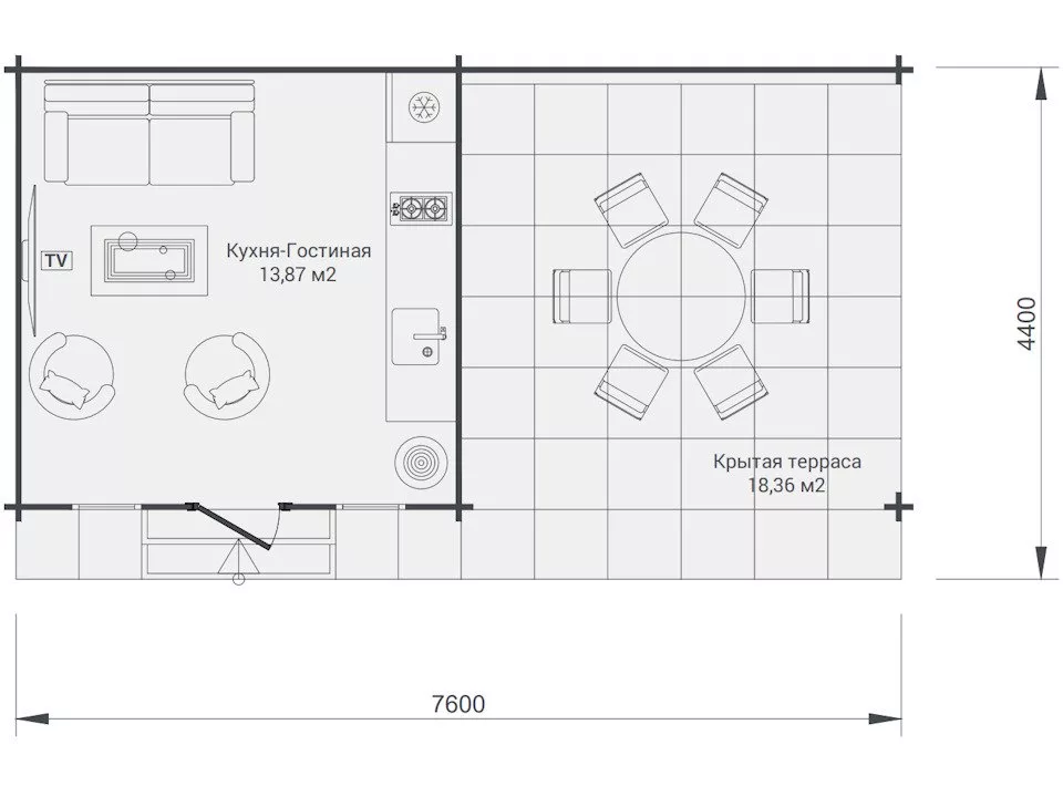
Планировка
1 этаж
Планировка может быть изменена в соответствии с Вашими пожеланиями.
Что входит в стоимость
Конструкция дома
Подвенечный оклад (обвязка) - брус из древесины хвойных пород дерева естественной сушки сечением 100х150 мм
Стены - 17 венцов (высота 2,295 м) из профилированного строганного мини-бруса камерной сушки сечением 44х135 мм.
Стены - 17 венцов (высота 2,295 м) из профилированного строганного мини-бруса камерной сушки сечением 44х135 мм.
Полы
Лаги - доска из древесины хвойных пород дерева естественной сушки сечением 50х150 мм, (шаг 600 мм), крепятся при помощи металлических опор бруса
Полы - Доска пола 27х135, влажность 12-14%.
Полы - Доска пола 27х135, влажность 12-14%.
Крыша
Стропильная система - строганный мини-брус камерной сушки сечением 45х140 мм, влажность 12-14%
Кровельный настил - Имитация бруса камерной сушки толщиной 20 мм, влажность 12-14%
Кровля - Гибкая черепица SHINGLAS, серия Оптима (цвет красный, серый или коричневый), монтируется на кровельный настил.
Кровельный настил - Имитация бруса камерной сушки толщиной 20 мм, влажность 12-14%
Кровля - Гибкая черепица SHINGLAS, серия Оптима (цвет красный, серый или коричневый), монтируется на кровельный настил.
Ветровая и торцевая планки
Строганная доска камерной сушки из хвойных пород дерева мм, влажность 12-14%.
Двери
Входная дверь - дверной блок ПВХ с однокамерным стеклопакетом (размеры по проекту) со всей необходимой фурнитурой, петли, врезной замок
Межкомнатные двери - деревянный филенчатый дверной блок из массива сосны 2080х880 мм со всей необходимой фурнитурой; петли, ручка, фиксатор.
Межкомнатные двери - деревянный филенчатый дверной блок из массива сосны 2080х880 мм со всей необходимой фурнитурой; петли, ручка, фиксатор.
Окна
оконный блок ПВХ с однокамерным стеклопакетом размеры по проекту (укомплектован ручками и запором)
Наличники из строганной доски камерной сушки из хвойных пород дерева мм, влажностью 12-14%.
Наличники из строганной доски камерной сушки из хвойных пород дерева мм, влажностью 12-14%.
Что не входит в стоимость
Сборка - цена указана отдельно
Доставка - рассчитывается индивидуально в зависимости от местонахождения объекта
Фундамент - монтаж свайно-винтового фундамента рассчитывается отдельно.
Доставка - рассчитывается индивидуально в зависимости от местонахождения объекта
Фундамент - монтаж свайно-винтового фундамента рассчитывается отдельно.
Подробные технические характеристики и варианты комплектации можно уточнить у менеджера.
Остались вопросы?
Оставьте контакты — перезвоним, уточним задачи и подберём решение под ваш участок.
Спасибо! Мы с вами свяжемся.