Описание
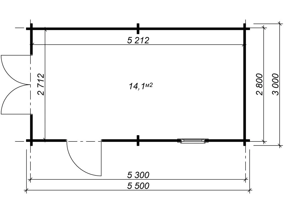
Хозблок «Любимец» — практичное и аккуратное решение для участка размером 3×5.5 м. Удобная планировка с отдельным входом позволяет использовать его как для хранения инвентаря, так и для небольшой мастерской. Классический деревянный стиль гармонично вписывается в любой ландшафт, а продуманная конструкция делает его надёжным и удобным в повседневной эксплуатации.
Планировка
1 этаж
Планировка может быть изменена в соответствии с Вашими пожеланиями.
Что входит в стоимость
Конструкция стен
Наружные стены (17 венцов - высота стены 2,295 м), фронтоны и перегородки из профилированного строганного мини-бруса камерной сушки сечением 44х135 мм, влажность 12-14%, монтируется по технологии четырехстороннего замкового паза с ветровым замком (теплый не продуваемый угол)
Подвенечный оклад (обвязка) из бруса из древесины хвойных пород дерева естественной сушки сечением 100х150 мм
Подвенечный оклад (обвязка) из бруса из древесины хвойных пород дерева естественной сушки сечением 100х150 мм
Полы
Балки перекрытия из доски из древесины хвойных пород дерева естественной сушки сечением 50х150 мм, (шаг 600 мм), крепятся при помощи металлических опор бруса
Доска пола 27х135, влажность 12-14%
Доска пола 27х135, влажность 12-14%
Крыша
Стропильная система (прогоны) - строганный мини-брус камерной сушки сечением 45х140 мм, влажность 12-14%
Кровельный настил из имитации бруса камерной сушки толщиной 20 мм, влажность 12-14%
Кровля - гибкая черепица SHINGLAS, серия Оптима (цвет красный, серый или коричневый), монтируется на кровельный настил
Кровельный настил из имитации бруса камерной сушки толщиной 20 мм, влажность 12-14%
Кровля - гибкая черепица SHINGLAS, серия Оптима (цвет красный, серый или коричневый), монтируется на кровельный настил
Ветровая и торцевая планки
Строганная доска камерной сушки из хвойных пород дерева, влажность 12-14%
Двери
деревянный филенчатый или щитовой дверной блок из массива сосны 2080х880 мм со всей необходимой фурнитурой, петли, замок (запор)
Окна и наличники
Деревянный оконный блок из массива сосны с одинарным остеклением h - 1000 мм (укомплектован ручками и запором)
Подробные технические характеристики и варианты комплектации можно уточнить у менеджера.
Остались вопросы?
Оставьте контакты — перезвоним, уточним задачи и подберём решение под ваш участок.
Спасибо! Мы с вами свяжемся.