Описание
Графтон
Потрясающий проект дома из двойного бруса в классическом стиле. Дом 12 на 9 (площадь 190 м.кв.) получил удачную планировку и отлично подойдет для круглогодичного проживания большой семьи. Современный и стильный дом станет настоящим украшением Вашего участка и будет приковывать к себе восторженные взгляды Ваших гостей и просто прохожих.
Площадь дома исправить:
Площадь застройки 134.6 м2
Площадь дома 199.10 м2
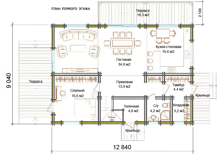
Площадь 1 этажа 98.5 м2 (без террас)
Площадь 2 этажа 82.1 м2
Площадь террасы 18.5 м2
Планировка
1 этаж
2 этаж
Планировка может быть изменена в соответствии с Вашими пожеланиями.
Что входит в стоимость
Стены
Подкладочный брус под стены.
Наружные и внутренние стены 44мм, перегородки.
Наружные и внутренние стены 44мм, перегородки.
Крыша
Стропильная система, обрешетка, контробрешетка.
Утепление, пароизоляция, ветрозащита.
Кровельное покрытие из металлочерепицы.
Подшивка потолка имитацией бруса.
Утепление, пароизоляция, ветрозащита.
Кровельное покрытие из металлочерепицы.
Подшивка потолка имитацией бруса.
Окна и двери
ПВХ окна с двухкамерными стеклопакетами, входная утепленная дверь.
Межкомнатные двери.
Межкомнатные двери.
Полы
Деревянные лаги, черновой настил под утепление, чистый дощатый настил
Подшивка потолка имитацией бруса
Полы террасы, крыльца из палубной доски
Подшивка потолка имитацией бруса
Полы террасы, крыльца из палубной доски
Перекрытие
Деревянные балки, черновой настил под утепление, чистый дощатый пол мансарды (чердака), подшивка потолка имитацией бруса.
Утепление
Утепление наружных стен и пола эковатой толщиной 150 мм.
Утепление внутренних стен эковатой 100 мм.
Утепление крыши эковатой 200 мм.
Звукоизоляция перекрытия эковатой 150 мм.
Утепление внутренних стен эковатой 100 мм.
Утепление крыши эковатой 200 мм.
Звукоизоляция перекрытия эковатой 150 мм.
Сборка
Сборка домокомплекта включена в стоимость.
Что не входит в стоимость
Инженерные коммуникации (отопление, сантехнические работы, электрика).
Окраска, мебель, печи, камины.
Доставка комплекта (рассчитывается дополнительно)
Водосточная система (рассчитывается дополнительно)
Бетонные, кладочные работы.
Отделка цоколя.
Окраска, мебель, печи, камины.
Доставка комплекта (рассчитывается дополнительно)
Водосточная система (рассчитывается дополнительно)
Бетонные, кладочные работы.
Отделка цоколя.
Подробные технические характеристики и варианты комплектации можно уточнить у менеджера.
Остались вопросы?
Оставьте контакты — перезвоним, уточним задачи и подберём решение под ваш участок.
Спасибо! Мы с вами свяжемся.