Описание
Эта надежная и удобная постройка сделает ваш отдых на даче приятным в любую погоду. В знойный летний день она подарит желанную прохладу, а в ненастный — укроет от непогоды и согреет теплом. Проект, разработанный специалистами компании «Вирабуд», учитывает все аспекты комфорта и отлично подходит для семейного отдыха или в кругу друзей.
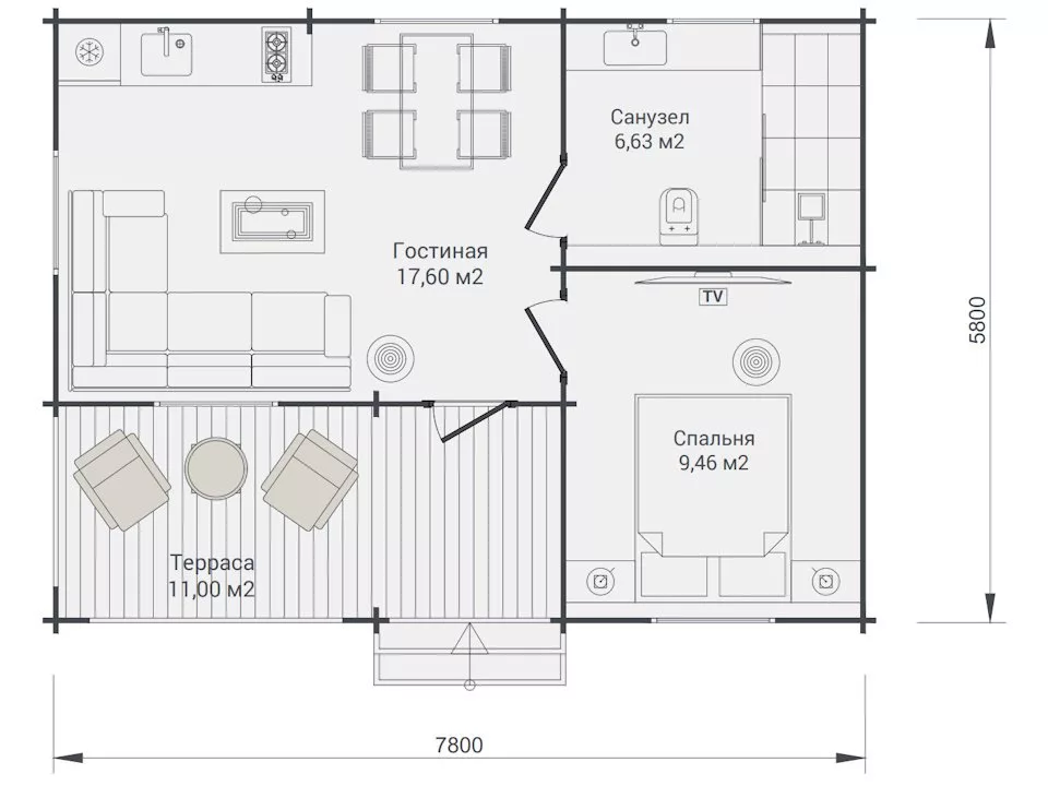
Планировка дома включает три помещения площадью 17,4, 6,5 и 9,3 кв. м, в которых можно обустроить гостиную, спальни, детскую комнату и другие функциональные зоны.
Планировка
1 этаж
Планировка может быть изменена в соответствии с Вашими пожеланиями.
Что входит в стоимость
Конструкция дома
Подвенечный оклад (обвязка) - брус из древесины хвойных пород дерева естественной сушки сечением 100х150 мм
Стены - 17 венцов (высота 2,295 м) из профилированного строганного мини-бруса камерной сушки сечением 44х135 мм.
Стены - 17 венцов (высота 2,295 м) из профилированного строганного мини-бруса камерной сушки сечением 44х135 мм.
Полы
Лаги - доска из древесины хвойных пород дерева естественной сушки сечением 50х150 мм, (шаг 600 мм), крепятся при помощи металлических опор бруса
Полы - Доска пола 27х135, влажность 12-14%.
Полы - Доска пола 27х135, влажность 12-14%.
Крыша
Стропильная система - строганный мини-брус камерной сушки сечением 45х140 мм, влажность 12-14%
Кровельный настил - Имитация бруса камерной сушки толщиной 20 мм, влажность 12-14%
Кровля - Гибкая черепица SHINGLAS, серия Оптима (цвет красный, серый или коричневый), монтируется на кровельный настил.
Кровельный настил - Имитация бруса камерной сушки толщиной 20 мм, влажность 12-14%
Кровля - Гибкая черепица SHINGLAS, серия Оптима (цвет красный, серый или коричневый), монтируется на кровельный настил.
Ветровая и торцевая планки
Строганная доска камерной сушки из хвойных пород дерева мм, влажность 12-14%.
Двери
Входная дверь - дверной блок ПВХ с однокамерным стеклопакетом (размеры по проекту) со всей необходимой фурнитурой, петли, врезной замок
Межкомнатные двери - деревянный филенчатый дверной блок из массива сосны 2080х880 мм со всей необходимой фурнитурой; петли, ручка, фиксатор.
Межкомнатные двери - деревянный филенчатый дверной блок из массива сосны 2080х880 мм со всей необходимой фурнитурой; петли, ручка, фиксатор.
Окна
оконный блок ПВХ с однокамерным стеклопакетом размеры по проекту (укомплектован ручками и запором)
Наличники из строганной доски камерной сушки из хвойных пород дерева мм, влажностью 12-14%.
Наличники из строганной доски камерной сушки из хвойных пород дерева мм, влажностью 12-14%.
Что не входит в стоимость
Сборка - цена указана отдельно
Доставка - рассчитывается индивидуально в зависимости от местонахождения объекта
Фундамент - монтаж свайно-винтового фундамента рассчитывается отдельно.
Доставка - рассчитывается индивидуально в зависимости от местонахождения объекта
Фундамент - монтаж свайно-винтового фундамента рассчитывается отдельно.
Подробные технические характеристики и варианты комплектации можно уточнить у менеджера.
Остались вопросы?
Оставьте контакты — перезвоним, уточним задачи и подберём решение под ваш участок.
Спасибо! Мы с вами свяжемся.