Описание
Баня-бочка 2.5 м (1 помещение)
Баня для малых компаний ( 1-2 человека). Достаточно пространства и для мытья, и для отдыха. Длину каждого помещения Заказчик может выбрать по своему усмотрению.
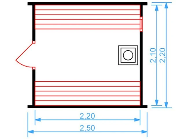
Планировка
1 этаж
Планировка может быть изменена в соответствии с Вашими пожеланиями.
Что входит в стоимость
Вход в баню
Торцевой вход в баню
Каркас бани
Брус технической сушки толщиной 45 мм (ель)
Обработка защитно-декоративными составами снаружи, цвет в ассортименте
Обручи из нержавеющей стали с регулируемыми замками
Кровля из битумной черепицы «Технониколь», серия «Оптима», цвет в ассортименте
Опоры бани из бруса, обработанные усиленным антисептиком
Обработка защитно-декоративными составами снаружи, цвет в ассортименте
Обручи из нержавеющей стали с регулируемыми замками
Кровля из битумной черепицы «Технониколь», серия «Оптима», цвет в ассортименте
Опоры бани из бруса, обработанные усиленным антисептиком
Двери, окна
Входная дверь деревянная глухая либо комбинированная со стеклом, с наличниками, ручками, запором (замком)
Дверь в парную из жаропрочного стекла
Окошко 40х40 в парной для проветривания парной
Дверь в парную из жаропрочного стекла
Окошко 40х40 в парной для проветривания парной
Внутреннее оборудование
Трапы деревянные для пола
Деревянные лавки, скамейки, столик (для бань с двумя и более помещениями)
Подспинники из ольхи в парной
Деревянные лавки, скамейки, столик (для бань с двумя и более помещениями)
Подспинники из ольхи в парной
Электропроводка
освещение в каждом помещении выключатели, розетка
Парная
Дровяная печь с металлической дверцей
Комплект камней для печи (габбро-диабаз)
Бак для воды 55 л «самоварного» типа, кран для бака
Утепленный дымоход («сэндвич») из нержавеющей стали
Зонтик дымохода
Проходка через крышу («флеш-мастер»)
Огнеупорная плита для защиты стены от нагрева в зоне печи
Полки (лежаки)
Сливное отверстие в полу
Вентиляционные продухи
Комплект камней для печи (габбро-диабаз)
Бак для воды 55 л «самоварного» типа, кран для бака
Утепленный дымоход («сэндвич») из нержавеющей стали
Зонтик дымохода
Проходка через крышу («флеш-мастер»)
Огнеупорная плита для защиты стены от нагрева в зоне печи
Полки (лежаки)
Сливное отверстие в полу
Вентиляционные продухи
Дополнительная комплектация (оплачивается отдельно)
Боковой вход в квадро-бане
Навес над входом либо крыльцо
Ступеньки для входа
Покраска корпуса в 2 цвета
Дверь в парную из матового или тонированного стекла
Дополнительные окна
Скамьи-рундуки с пространством для хранения вещей
Стеклянная дверца печи
Ретро-проводка
Навес над входом либо крыльцо
Ступеньки для входа
Покраска корпуса в 2 цвета
Дверь в парную из матового или тонированного стекла
Дополнительные окна
Скамьи-рундуки с пространством для хранения вещей
Стеклянная дверца печи
Ретро-проводка
Подробные технические характеристики и варианты комплектации можно уточнить у менеджера.
Остались вопросы?
Оставьте контакты — перезвоним, уточним задачи и подберём решение под ваш участок.
Спасибо! Мы с вами свяжемся.