Описание
А-фрейм дом 6 на 9
Компания ООО "Вирабуд" рада предложить вам уникальную возможность строительства домов-шалашей в Минске и по всей территории Беларуси. Мы специализируемся на возведении современных и экологически чистых сооружений, которые гармонично вписываются в природу и соответствуют всем современным стандартам качества и комфорта.
Возможно внесение изменений в планировку дома А-Фрейм.
Планировка
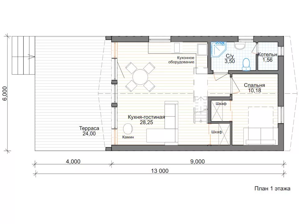
1 этаж
2 этаж
Планировка может быть изменена в соответствии с Вашими пожеланиями.
Что входит в стоимость
Стены
Подкладочный брус под стены, антисептированный
Наружные стены каркасно-обшивные с утеплением толщиной 150 мм, ветрозащитой, пароизоляцией, с наружной и внутренней обшивкой имитацией бруса
Внутренние стены каркасно-обшивные с обшивкой имитацией бруса
Наружные стены каркасно-обшивные с утеплением толщиной 150 мм, ветрозащитой, пароизоляцией, с наружной и внутренней обшивкой имитацией бруса
Внутренние стены каркасно-обшивные с обшивкой имитацией бруса
Крыша
Стропила, обрешетка, контробрешетка, ветрозащита, пароизоляция
Утепление крыши толщиной 200 мм
Кровельное покрытие из металлочерепицы
Подшивка потолка по крыше имитацией бруса
Утепление крыши толщиной 200 мм
Кровельное покрытие из металлочерепицы
Подшивка потолка по крыше имитацией бруса
Полы
Деревянные лаги. Черновой пол с утеплением толщиной 150 мм
Чистый дощатый настил из сухой шпунтованной доски внутри помещений
Плинтус деревянный
Полы террасы, крыльца из палубной доски
Чистый дощатый настил из сухой шпунтованной доски внутри помещений
Плинтус деревянный
Полы террасы, крыльца из палубной доски
Перекрытие (если предусмотрено проектом)
Деревянные балки. Черновой потолок. Утепление (звукоизоляция)
Пароизоляция
Чистый дощатый пол мансарды (чердака)
Обшивка потолка имитацией бруса
Техническая одномаршевая деревянная лестница
Пароизоляция
Чистый дощатый пол мансарды (чердака)
Обшивка потолка имитацией бруса
Техническая одномаршевая деревянная лестница
Окна и двери
Входная дверь – ПВХ, остекленная, с фурнитурой и замком
Окна ПВХ, поворотно-откидные, с ручками и запором
Межкомнатные двери - деревянные филенчатые из массива сосны с фурнитурой и ручкой
Наличники оконные и дверные
Отделка откосов
Окна ПВХ, поворотно-откидные, с ручками и запором
Межкомнатные двери - деревянные филенчатые из массива сосны с фурнитурой и ручкой
Наличники оконные и дверные
Отделка откосов
Что не входит в стоимость
Инженерные коммуникации (отопление, сантехнические работы, электрика)
Окраска, мебель, печи, камины
Доставка комплекта (рассчитывается дополнительно)
Бетонные, кладочные работы
Окраска, мебель, печи, камины
Доставка комплекта (рассчитывается дополнительно)
Бетонные, кладочные работы
Подробные технические характеристики и варианты комплектации можно уточнить у менеджера.
Остались вопросы?
Оставьте контакты — перезвоним, уточним задачи и подберём решение под ваш участок.
Спасибо! Мы с вами свяжемся.