Дачный дом "Тройной удел"
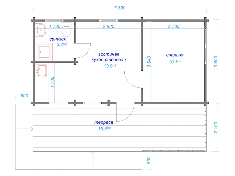
Завершены работы по строительству дачного дома по проекту "Тройной удел". Выполнен весь комплекс работ по постройке дома.
Завершены работы по строительству дачного дома по проекту "Тройной удел". Выполнен весь комплекс работ по постройке дома.